PHOTOS

LOCATIONS

Type B (Maisonnettes - Huisjes)


 



 

 

 

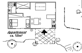
type B (appartement)


 

 

 

type A